
帕特介紹清水泵及清水泵結構圖
2013-03-05
清水泵分立式清水泵、臥式清水泵、單級清水泵、多級清水泵、離心式清水泵、自吸式清水泵.
ISW臥式清水泵是管道離心泵,供輸送清水及物理化學性質類似于清水的其它液體之用,適用于工業和城市給排水、高層建筑增壓送水、園林噴灌、消防增壓、遠距離輸送、暖通制冷循環、浴室等冷暖水循環增壓及設備配套,使用溫度T≤80℃。2、ISWR臥式熱水泵,廣泛適用于:冶金、化工、紡織、造紙以及賓館飯店等鍋爐熱水增壓循環輸送及城市采暖系統,ISWR型使用溫度T≤120℃。3、ISWH臥式化工泵,供輸送不含固體顆粒,具有腐蝕性。粘度類似于水的液體,適用于石油、化工、冶金、電力、造紙、食品、制藥和合成纖維等部門,使用溫度為-20℃~+120℃。4、ISWB臥式管道油泵,供輸送汽油、煤油、柴油等油類產品或易燃、易爆液體,被輸送介質溫度為-20℃~120℃。
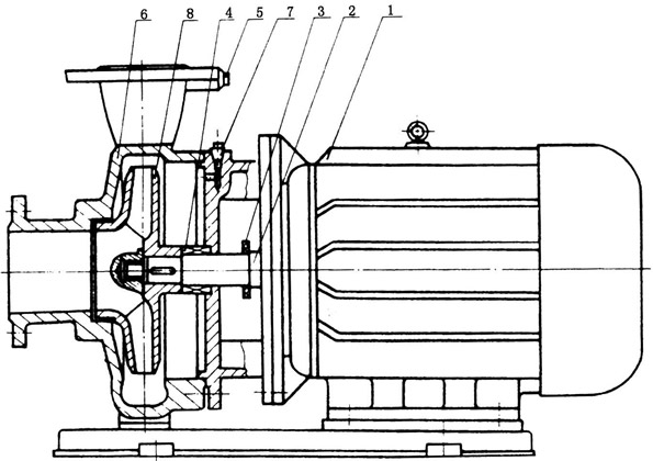
臥式清水泵結構圖
.jpg)
1 電動機:直接與水泵聯接傳送動力,采用名牌電機。
2 泵軸:與電機同軸,為電機加長軸,確保了軸的同心,使泵運轉平穩。無噪音和振動現象,采用鍍鉻處理,增強了使用壽命。
3 擋水圈:防止因密封漏水而使電機進水。
4 機械密封:采用不銹鋼、碳化鎢、氟橡膠等材料制成。平衡式耐高溫。高壓機械密封,運行壽命長,不滲漏,對軸無磨損,不積水垢,保證工作環境的整潔。
5 取壓塞:可安裝壓力表直觀監控泵的正常高效運行
6 泵體:壓出塞和吸入室采用優秀水力模型設計而成,既美觀又高效,設有安裝底腳,便于安裝和運行穩固。
7 放氣塞:灌泵時排凈泵內空氣,保證了泵的正常啟動。
8 葉輪:采用先進的水力模型設計而成,具有高效率,可靠性好等特點。
立式清水泵結構圖

G型鍋爐給水泵結構圖
.jpg)
ZX系列自吸清水泵結構圖
.gif)
.jpg)
IS、IR型泵系根據國家標準ISO2858所規定的性能和尺寸設計的,主要由泵體(1)、泵蓋(2)、葉輪(3)、軸(4)、密封環(5)、軸套及懸架軸承部件(12)等所組成。
IS、IR型泵的泵體和錄蓋的部分,是從葉輪背面處剖分的,即通常所說的后開門結構形式。其優點是檢修方便,檢修時不動泵體,吸入管路,排出管路和電動機,只需拆下加長聯軸器的中間聯接件,即可退出轉子部件,進行檢修。
泵的殼體(即泵體和泵蓋)抅成泵的工作室、葉輪、軸和滾動軸承等為錄的轉子。懸架軸承部件支承著泵的轉子部件,滾動軸承承受泵的徑向力和軸向力。
為了平衡泵的軸向力,大多數泵的葉輪前、后均設有密封環,并在葉輪后蓋板上設有平衡孔,由于有些泵軸向力不大,葉輪背面未設密封環和平衡孔。
泵的軸向密封環是由填料壓蓋(9),填料環(10),和填料(11)等組成,以防止進氣或大量漏水。泵的葉輪如有平衡,則裝有軟填料的空腔與葉輪吸入口相通,若葉輪入口處液體處于真空狀態,則很容易沿著軸套表面進氣,故在填料腔內裝有填料環通過泵蓋上的小孔將泵室內壓力水引至填科環進行密封。泵的葉輪如沒有平衡孔, 由于葉輪背面液體壓力大于大氣壓,因而不存在漏汽問題,故可不裝填料環。
為避免軸麿損,在軸通過填料腔的部位裝冇軸套保護,軸套與軸之間裝有0形密封困,以防止沿著配合表面進氣或漏水。
泵的傳動方式是通過加長彈性聯軸器與電動機聯結的。泵的旋轉方向,從驅動端看,為順時針方向旋轉。
1 泵體 2 泵蓋 3 葉輪 4 軸 5 密封環 6 葉輪螺母 7 止動墊圈 8 軸套 9 填料壓蓋 10 填料環 11 填料 12 懸架軸承部件
W型單級漩渦清水泵結構圖
.jpg)
主要零件(見結構圖)有(1)泵(2)泵蓋(3)葉輪(4)托架結合體(5)泵軸(6)爪型彈性聯軸器(7)特別組合體機械密封。該型泵與電機合裝在同一底座上.進、出口方向為斜鑰上.經接彎管可変為垂直向上。葉輪在軸上能夠自由地作軸向移動,泵在工作中葉輪能自行調節好與泵體和泵蓋之間的間隙。
中開式清水泵結構圖
.jpg)
| 序號 | 名稱 | 序號 | 名稱 |
| 1 | 泵體 | 12 | 軸套螺母(右) |
| 2 | 泵蓋 | 13 | 軸承體 |
| 3 | 泵軸 | 14 | 固定螺栓 |
| 4 | 葉輪 | 15 | 軸承體壓蓋 |
| 5 | 雙吸密封環 | 16 | 聯軸器部件 |
| 6 | 軸套 | 17 | 圓螺母 |
| 7 | 填料套 | 18 | 軸承蓋(甲) |
| 8 | 水封管 | 19 | 軸套螺母(左) |
| 9 | 填料 | 20 | 軸承擋圈 |
| 10 | 填料環 | 21 | 軸承蓋(乙) |
| 11 | 填料壓蓋 | 22 | 端蓋 |
TSWA型多級離心清水泵結構圖
.jpg)
立式清水泵結構圖
.jpg)
【D、DG型臥式多級離心泵清水】結構圖:
DG清水泵(中低壓)結構圖.填料密封-水封水引自第一級葉輪
.bmp)
| 1 軸承體 | 6 導葉 | 11 尾蓋 |
| 2 進水段 | 7 密封環 | 12 填料密封部件 |
| 3 平衡水管 | 8 中段 | 13 水冷填料壓蓋 |
| 4 導葉套 | 9 出水段 | 14 O型密封圈 |
| 5 葉輪 | 10 平衡盤 | 15 軸承部件 |
DG清水泵(中低壓)結構圖.填料密封-水封水用外接水
DG清水泵(中低壓清水)結構圖.填料密封-機械密封
.bmp)
| 1 軸承體 | 6 導葉 | 11 尾蓋 |
| 2 進水段 | 7 密封環 | 12 填料密封部件 |
| 3 平衡水管 | 8 中段 | 13 水冷填料壓蓋 |
| 4 導葉套 | 9 出水段 | 14 O型密封圈 |
| 5 葉輪 | 10 平衡盤 | 15 軸承部件 |
DG清水泵(次高壓)結構圖.
.bmp)
【D、DG型臥式多級離心清水泵】結構特點:
D、DG型泵進、出水口均為垂直向上,通過拉緊螺栓將泵的進水段、中段、出水段、軸承體等泵殼體部分聯結成一體。根據泵的揚程選擇泵的級數。該系列泵轉子部分主要由軸及安裝在軸上的葉輪、軸套、平衡盤等零件組成,其中葉輪的數量根據泵的級數而定。軸上零件用平鍵和軸螺母緊固使之與軸聯為一體。整個轉子由兩端滾動軸承或滑動軸承支承。軸承按型號不同而定,均不承受軸向力,其軸向力由平衡盤平衡。泵在運行中允許轉子在泵殼中軸向游動,不能采用向心球軸承。滾動軸承用油脂潤滑,滑動軸承用稀油潤滑,并用油環進行白潤滑,循環水冷卻。泵的進水段、中段、出水段之間的密封面均采用二硫化鉬潤滑脂密封,轉子部分與固定部分之間裝有密封環、導葉套等進行密封, 當密封環和導葉套的磨損程度已影響泵的工作性能時應予更換。的密封形式有機械密封和填料密封兩種。泵采用填料密封時,填料環的位置安放要正確,填料的松緊程度必須適當,以液體能一滴一滴滲出為宜。泵各種密封元件裝在密封箱內,箱內要通入一定壓力的水,起水封、水冷或水潤滑作用。在軸封處裝有可更換的軸套,保護泵軸。
次高壓泵一般采用滑動軸承、稀油潤滑結構,DG85-6 7、DG155-67型泵可采用滑動軸承、 稀油潤滑,也可采用滾動軸承、干油潤滑結構,其余型號均采用滾動軸承、干油潤滑結構。中、低壓泵的主要零件材料一般采用優質鑄鐵,次高壓泵主要零件采用鑄鋼或不銹鋼。該系列泵通過彈性聯軸器由原動機直接驅動,從原動機方向看,泵為順時針方向旋轉。
上海帕特泵業制造有限公司
2013年03月05日 星期二
上海帕特泵業制造有限公司相關系列產品如下,更多詳細內容可以點擊產品中心查詢
1、QBK系列氣動隔膜泵 2、DBY系列電動隔膜泵 3、EG系列臥式離心泵 4、VG系列立式離心泵
5、SPG低噪音管道屏蔽泵 6、PTL單級單吸離心泵 7、PTW臥式單級離心泵 8、IH系列標準化工泵
9、IHF氟塑料離心泵 10、VGF系列化工離心泵 11、EGF系列臥式化工泵 12、ZX系列自吸泵
13、WFB無密封自控自吸泵 14、ZB3A不銹鋼轉子泵 15、JDM機械隔膜計量泵 16、JM機械隔膜計量泵
17、CDL系列輕型立式多級泵 18、CHL臥式多級泵 19、D、DG型臥式多級離心泵 20、CDLK浸入式多級離心泵
21、2X系列旋片真空泵 22、2BV(SKA)水環真空泵 23、QJ系列深井潛水泵 24、WQP系列不銹鋼潛水泵
25、FYS耐腐蝕塑料液下泵 26、THY長軸液下泵 27、G型單螺桿泵 28、KCB、2CY系列齒輪輸油泵
29、CYZ-A系列自吸離心油泵 30、CQB系列磁力泵 31、CQB-F系列氟塑料磁力泵 32、CQ系列磁力驅動泵
關于 清水泵 清水泵結構圖 的新聞








